平移门

分享
微信
新浪微博
QQ
QQ空间
豆瓣网
百度贴吧
规格:常规、非标、可接受用户特殊要求设计
门框类型:对开式、单扇式
开合方式:脚感应、手感应、头感应、智能卡、磁卡、条码、指纹掌纹、触摸等
材质:门框采用SUS304不锈钢拉丝板、彩钢板、烤漆钢质、密胺脂板;门页采用SUS304不锈钢拉丝板、彩钢板、烤漆钢质
填充物:阻燃纸蜂窝/铝蜂窝/岩棉
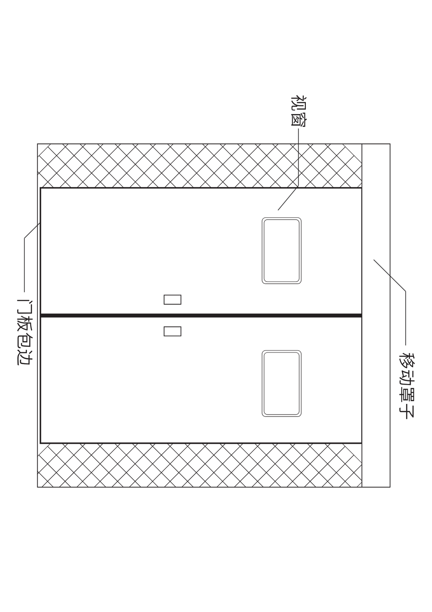
门上视窗:样式:外直内直、外直内圆、外圆内圆颜色:白色、黑色规格:400*600/500*800
玻璃:普通钢化玻璃、磨砂钢化玻璃、防火钢化玻璃、超白钢化玻璃等
喷涂效果:喷涂(室外氟碳粉、静电粉)、烤漆、免漆(颜色可接受用户需求定制)
400-0551-208
产品详情

平移门又称电动平移门、自动平移门、智能平移门等,具有多功能的特点,其门体对抗风载要求较严,适合在各种洁净环境安装。平移门属于电动控制门,可以通过按钮、刷卡、遥控器手动控制开关门,也可以通过人脸识别、人体感应实现全自动开关门。该种门扇可以手动、电动转换。轨道为单轨设计,门体对上部的承载轨道强度要求高,承载性能好,门体运行可靠性高,门体运行时摩擦力小,开启轻便、平稳,门开机启动扭矩要求小,功耗小。

特点:

开启速度快、平稳,特别适用于洁净室物流、人流频繁出入通道口,它能迅速隔绝洁净室内外气流,保持洁净室内空气洁净度。

磁悬浮自动平移门驱动装置使用方便,操作方式独特,由线性的直流电动机的磁性驱动,运行安静,安全可靠。

产品参数:

规格

常规、非标、可接受用户特殊要求设计

门框类型

对开式、单扇式

开合方式

脚感应、手感应、头感应、智能卡、磁卡、条码、指纹掌纹、触摸等

材质

门框采用SUS304不锈钢拉丝板、彩钢板、烤漆钢质、密胺脂板;门页采用SUS304不锈钢拉丝板、彩钢板、烤漆钢质

填充物

阻燃纸蜂窝/铝蜂窝/岩棉

门上视窗

样式:外直内直、外直内圆、外圆内圆颜色:白色、黑色规格:400*600/500*800

玻璃

普通钢化玻璃、磨砂钢化玻璃、防火钢化玻璃、超白钢化玻璃等

喷涂效果

喷涂(室外氟碳粉、静电粉)、烤漆、免漆(颜色可接受用户需求定制)

应用场景:

适用于药厂、电子厂、医院手术室、|CU房等气密室手术室

򡂈
联系我们
电话咨询 400-0551-208
微信客服
扫码咨询